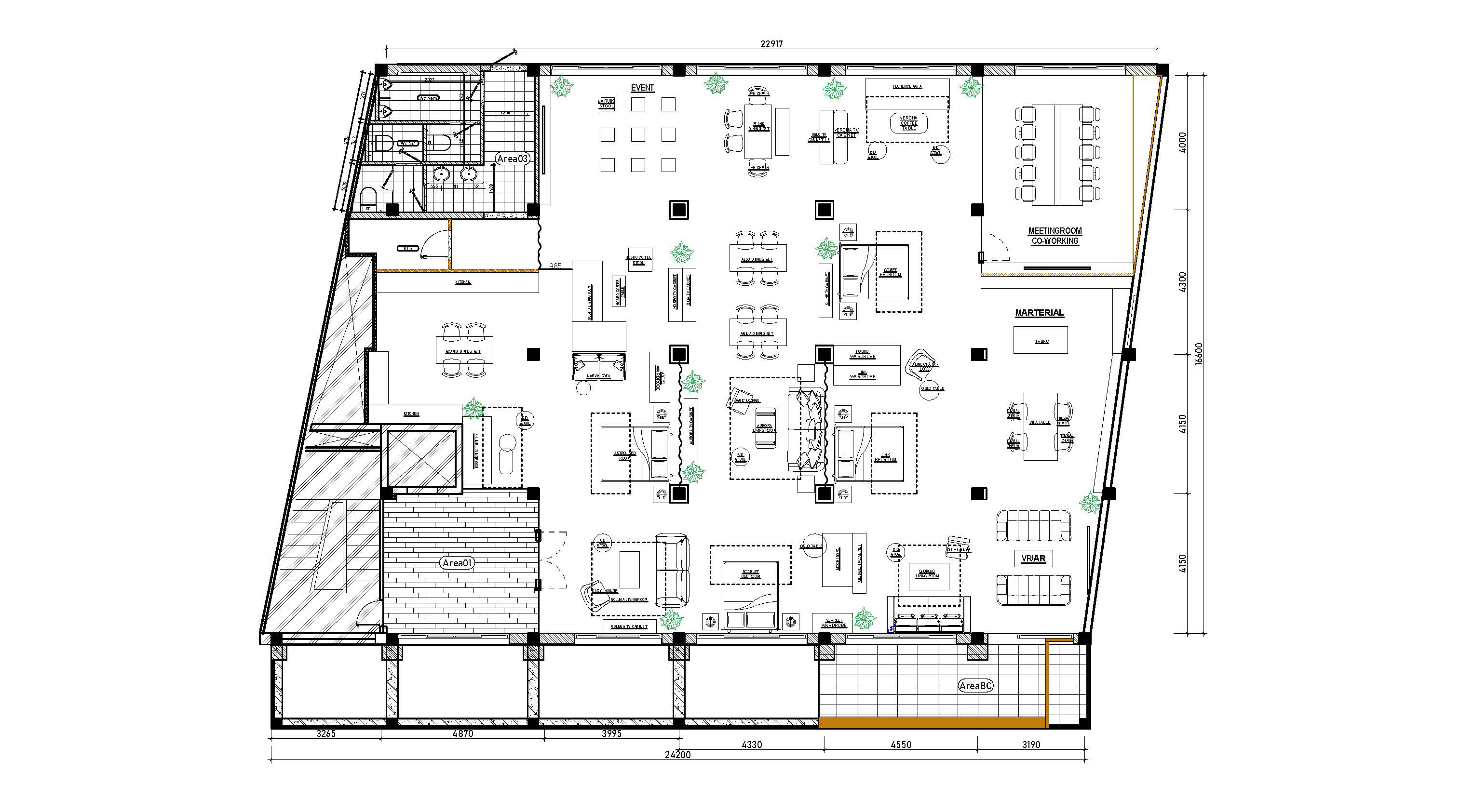
Designed for Moho and opened officially in January 2026. As Design Director, I guided the creative vision and coordinated multidisciplinary teams to shape a showroom that balances a cost-effective approach with a minimal and sophisticated atmosphere.
Fixed wooden storages and frames are conceived as “precious stones set in the rock”, providing structure and material depth, while soft light veils float through the center, gently dividing the space and adding a sense of lightness.
The goal was to create a calm architectural background where Moho’s furniture becomes the true protagonist, allowing each piece to stand out through simplicity, clarity, and refined spatial composition.

























Lascia un commento