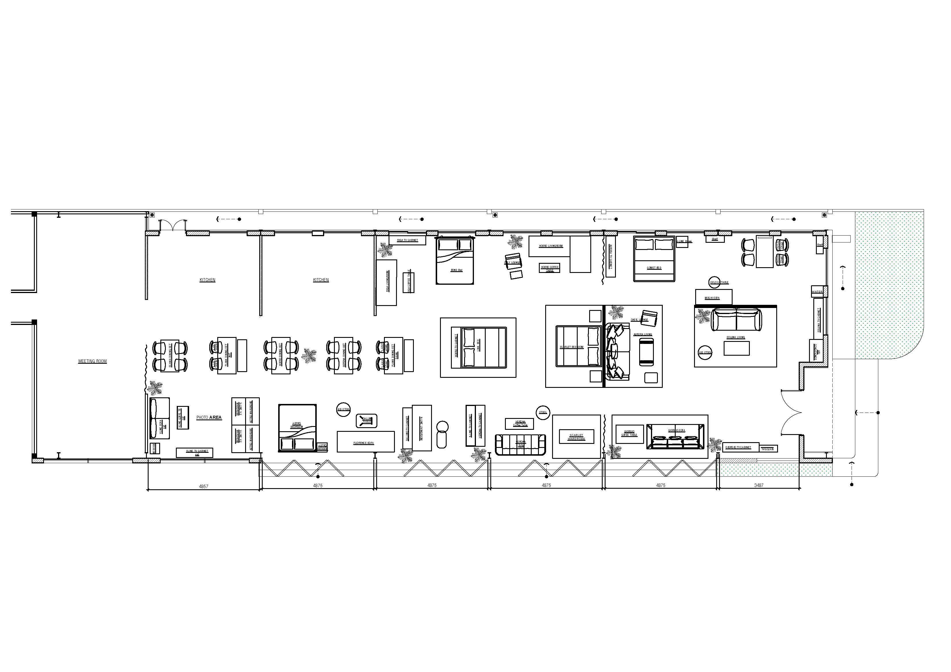
Designed for Moho, the showroom was developed through a cost-conscious approach focused on reorganizing the customer experience through two distinct spatial conditions. The front area functions as a gallery-like environment where key launches are presented on oversized podiums, isolating each product and giving greater emphasis to form, material, and proportion.
Towards the back, the space transitions into a more open and flexible layout displaying the broader collection in a domestic setting. The contrast between the two environments creates a progression from focused presentation to wider exploration, allowing different product categories and price levels to coexist within a single spatial narrative.









